ул. Сухарная, 35/1
novosibirsk@kotel-kv.ru
8 (800) 551-70-98
Бесплатно по России
Видео
Уточните ваш запрос, если товар не подходит

Планка шурующая ТШПМ-2.0 в Новосибирске

Цена планки шурующей ТШПМ-2.0 в Новосибирске 20 000 рублей

Цена на планка шурующая ТШПМ-2.0 с доставкой от 20 000 рублей с НДС
Условия поставки:
В наличии на складе
ТК по России и Казахстану
Безналичный расчет

Планка шурующая ТШПМ-2.0 в Новосибирске

Технические характеристики
Отзывы
Марка топки ТШПМ-2.0 Тип оборудования Топка ТШПМ
Масса, не более, т -
Об этом товаре еще нет отзывов. Будьте первым!
Оставьте ваш отзыв

Планка шурующая ТШПМ-2.0

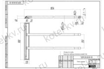
Шурующая планка ТШПМ-2.0 чертеж Чертеж планки шурующей ТШПМ-2.0 Топка с шурующей планкой механическая служит для автоматической подачи и сжигания твердого топлива (угля). Шуровка и удаление очаговых остатков производится механическим приводом без ручного вмешательства машиниста. Топливо в топку ТШПМ поступает непрерывным потоком.

Планка шурующая ТШПМ-2.0 состоит из трехгранной планки и труб, через которые подается вода для охлаждения планки водой. Шурующая планка предназначена для продвижения горящего топлива по решетке, шуровки слоя, сброса выгоревшего шлака и подачи раскаленных кусочков топлива под свежее топливо. Передняя грань шурующей планки, обращенная к шлаковому бункеру, расположена под углом 40 - 60° к горизонтали, а грань, обращенная в сторону бункера с топливом, под углом 15 - 16°. Вследствие такого расположения граней при ходе планки вперед все топливо, лежащее на решетке, движется волнообразно, что способствует его перемешиванию, а при обратном ходе планки часть раскаленного топлива с середины решетки перемещается к фронту, благодаря чему улучшаются условия воспламенения угля, поступающего на решетку, поскольку раскаленные частицы являются очагами воспламенения свежего топлива.

Сброс золы и шлака с решетки осуществляется при опрокидывании поворотных колосников в задней части топки.

Для надежного заполнения решетки топливом, а также осуществления шуровки слоя происходит чередование ходов планки на разную длину. Выбор движения планки определяется в зависимости от характеристик топлива, длины решетки и тепловой нагрузки топки. Движение планки регулируется автоматикой топки.

Купить планку шурующую ТШПМ-2.0 топки ТШПМ в Новосибирске, а также другие запасные части топки вы можете на нашем котельном заводе.

Описание товара

    Купить планку шурующую тшпм-2.0 в Новосибирске

    Для получения консультации укажите номер вашего телефона
    Смотреь обзор на

    Планка шурующая ТШПМ-2.0 - запасная часть топки ТШПМ. Топки ТШПМ это механические топки с шурурующей планкой, работающие с твердотопливными водогрейными котлами марки КВм в производственных и отопительных котельных на угле. Котельный завод производит полный перечень запасных частей топки ТШПМ. Ознакомиться с каталогом деталей ТШПМ, вы можете на официальном сайте завода.

    Патенты на котельное оборудование

    Патенты

    Смотреть все патенты
    Сертификаты Завода

    Сертификаты

    Смотреть все сертификаты
    Членство в СРО

    Допуски

    Смотреть все допуски
    Отзывы о продукции котельного завода

    Отзывы о продукции котельного завода

    Смотреть все письма
    Аттестованная технология сварки

    Аттестованная технология сварки

    Смотреть все аттестаты
    Цена с НДС
    20 000